品牌:悦诚
型号:无
规格:无
起订:1普通
供应:1普通
发货:3天内
发送询价
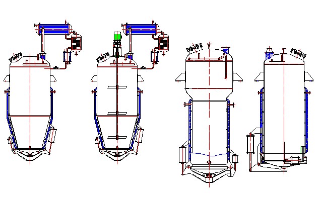
用途:本设备适用于制药、生物、食品、化工等行业,常用于中草药的有效成份及芳香油的提取,是中药生产中的常用设备。
特点:
a.严格按压力容器规范制作,内外精密抛光,符合GMP要求。
b.设备主要由主罐、消泡器、冷凝器、冷却器、油水分离器、过滤器等组成。
c.设备的主要形式有直筒式、正锥式、磨茹式、倒锥式等,可根据需要装备搅拌装置。d.出渣门有多种形式供用户选择,有双气缸式、多气缸式、螺旋式、齿合式
